Page suivante
Page précédente
Sarcelles (95200)

Maison 5 pièce(s) 3 chambre(s) 84 m²

1
478 m²
1
329 000 €
Réf 329HK _ SRC

VOVARD IMMOBILIER tel : 01 39 86 06 70 vous propose - A vendre - SARCELLES VILLAGE – Maison de plain-pied 4 pièces – 3 chambres

Située à Sarcelles Village, au fond d’une impasse au calme absolu, cette maison de plain-pied constitue un produit extrêmement rare sur le secteur, très recherché pour sa configuration

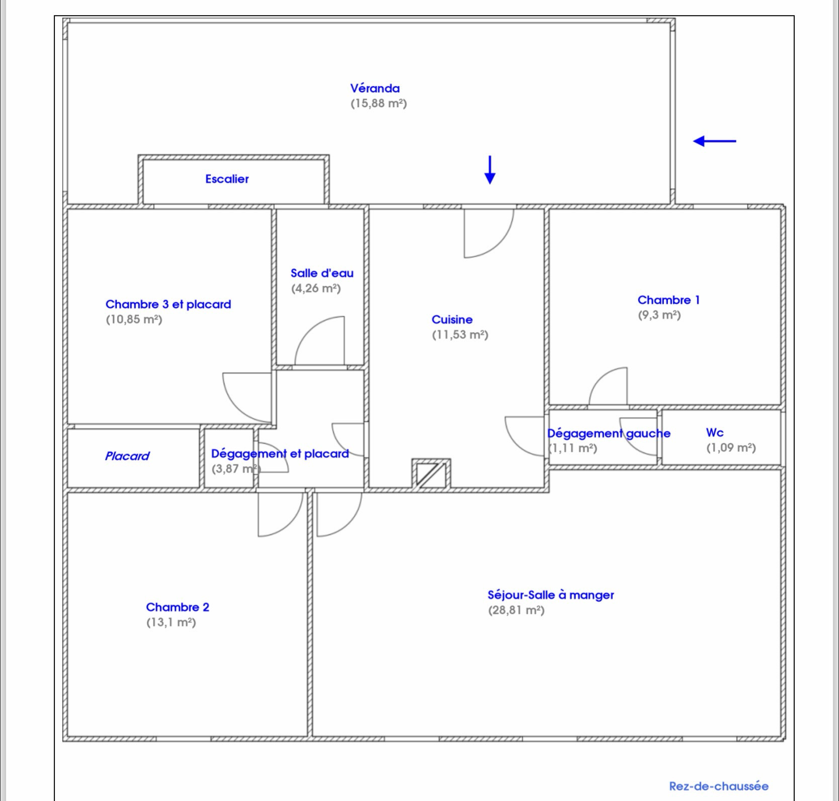
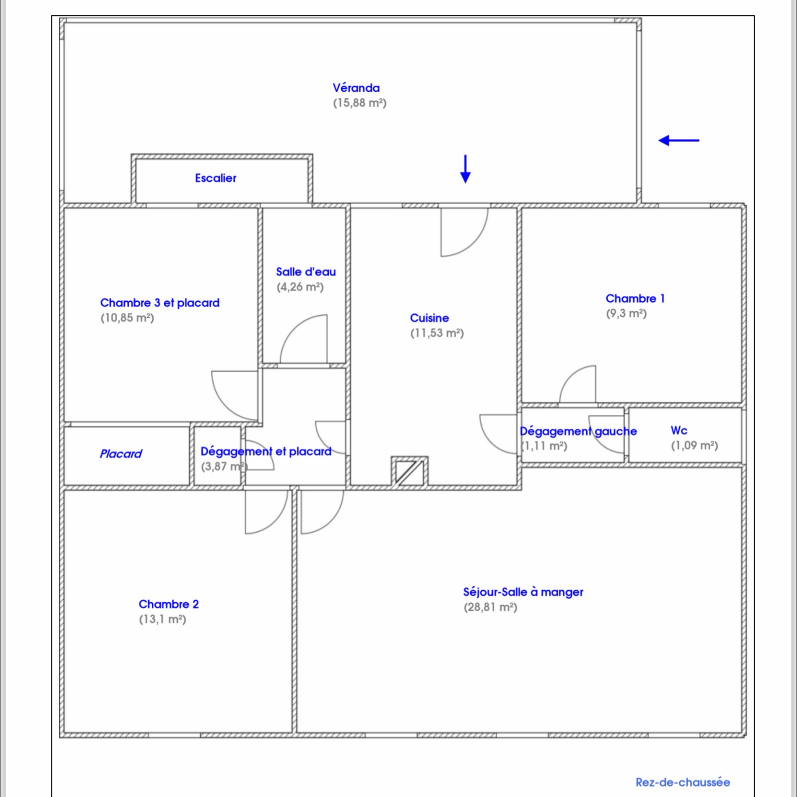
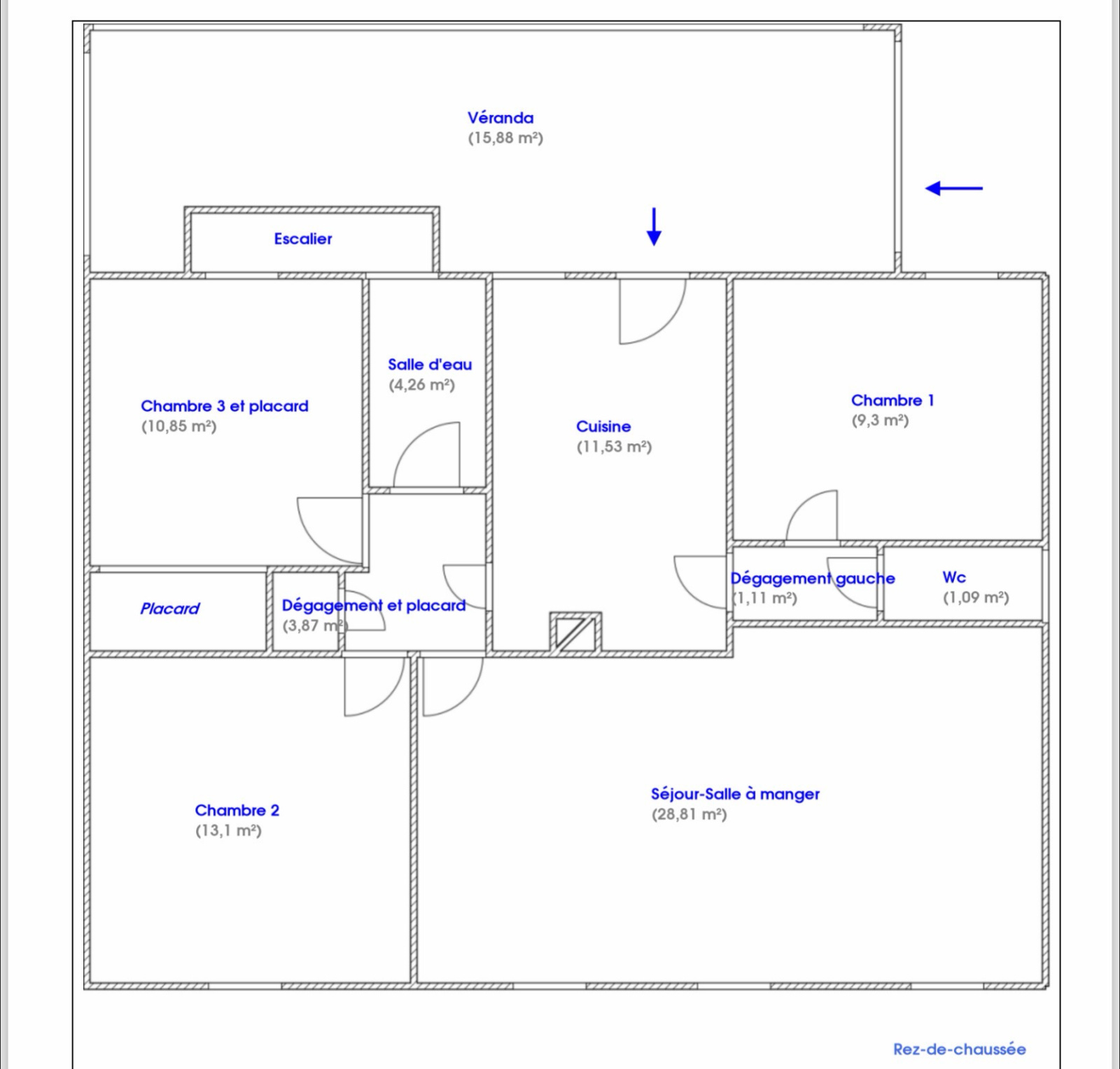
L’entrée de la maison s’effectue par une belle véranda, véritable espace de transition qui dessert directement la cuisine indépendante de 11,53 m² ainsi que le séjour – salle à manger de 28,81 m² tres lumineux 

Dans la continuité, l’espace nuit se compose de trois chambres confortables de 13,10 m², 10,85 m² et 9,30 m², ainsi que d’une salle d’eau quasi neuve

La maison dispose également d’un sous-sol partiel d’environ 18 m² avec la chaudiere 

la maison dispose d'un terrain, d’une surface de 478 m², Un beau garage indépendant de 23 m², ainsi qu’une dépendance 

Maison en excellent état général, bénéficiant d’une isolation par l’extérieur, de fenêtres PVC double vitrage, d’une très bonne isolation globale. Ensemble bien entretenu,

Situation idéale, à environ 10 minutes de la gare de St Brice sous foret, dans un secteur calme et recherché.

Produit rare, plain-pied très difficile à trouver dans le secteur, à visiter sans tarder.

Taxe fonciere 1510 € / ans

Bilan énergétique

Diagnostics énergetiques
A propos de ce bien Caractéristiques de ce bien
  • Surface 84 m²
  • carrez 84 m²
  • terrain 478 m²
  • séjour 28 m²
  • 3 chambre(s)
  • 1 salle(s) d'eau
  • construit en 1950
  • cuisine séparée (semi-équipée)
  • Chauffage individuel : chaudière (gaz)
  • 1 garage(s)

Composition

Composition de ce bien

Rez-de-chaussée

  • véranda 15.88 m²
  • cuisine 11.53 m²
  • degagement 1.11 m²
  • WC 1.09 m²
  • chambre 9.3 m²
  • degagement placard 3.87 m²
  • salon/sejour 28.81 m²
  • chambre 13.1 m²
  • chambre 10.85 m²
  • salle d'eau 4.26 m²
  • Abri Jardin
  • Garage

Etage -1

  • Chaufferie

Financier

Informations financières
Prix de vente 329 000 € Les honoraires d'agence seront intégralement à la charge du vendeur
Taxe foncière annuelle 1 510 €

Autour du bien

Découvrez le quartier

Simulation

Calcul des mensualités
* Champs obligatoires
Agence VOVARD IMMOBILIER Agence