Page suivante
Page précédente
Saint-Brice-sous-Forêt (95350)

Maison 5 pièce(s) 4 chambre(s) 95.31 m²

1
1
105 m²
339 000 €
Réf 339BRD-BN
VOVARD IMMOBILIER tel : ** 01 39 86 06 70 ** vous propose - A vendre - cette charmante maison type F 5 - 4 chbs de deux étages, parfaitement située dans un quartier résidentiel paisible , proche toutes commodités ( Ecole, Commerce à moins de cinq minutes ) , Elle comprend une entrée avec placard, un séjour de 29 m2 orienté ouest, qui mène directement à la terrasse, et une cuisine américaine aménagée. Wc séparé 1 er étage : un vaste palier avec placard aménagé, 2 chambres dont une de 14 m2 pour les parents, une salle de bain et des toilettes. Au deuxième étage, on trouvera un palier, deux chambres, et un grenier pour le stockage, Il y a également une seconde salle d'eau Pour les enfants le tout édifié sur un terrain de 105 m2 exposition S/O sans aucun vis à vis LA SITUATION ( école & transport ) : Situé à 12 minutes à pied de la gare SNCF, ligne H conduisant à Paris (Gare du Nord) en 16 min ET à 5 min des Écoles Primaire et maternelle Surface hab. : 96 M2 + Box + Buanderie + cellier extérieur RUBRIQUE FINANCIÈRE: Charges: 25€ pour l'entretien du lotissement et local poubelle - Taxe Foncière: 1734 €

Bilan énergétique

Diagnostics énergetiques
A propos de ce bien Caractéristiques de ce bien
  • Surface 95,31 m²
  • carrez 96 m²
  • terrain 105 m²
  • séjour 29 m²
  • 4 chambre(s)
  • 1 salle(s) de bain
  • 1 salle(s) d'eau
  • construit en 1978
  • cuisine américaine (semi-équipée)
  • Chauffage individuel : radiateur (electrique)
  • 1 garage(s)
  • exposition Sud-Ouest
  • 1 côté(s) mitoyen(s)
  • 3 niveau(x)
  • vue SANS VIS A VIS
  • terrasse

Composition

Composition de ce bien

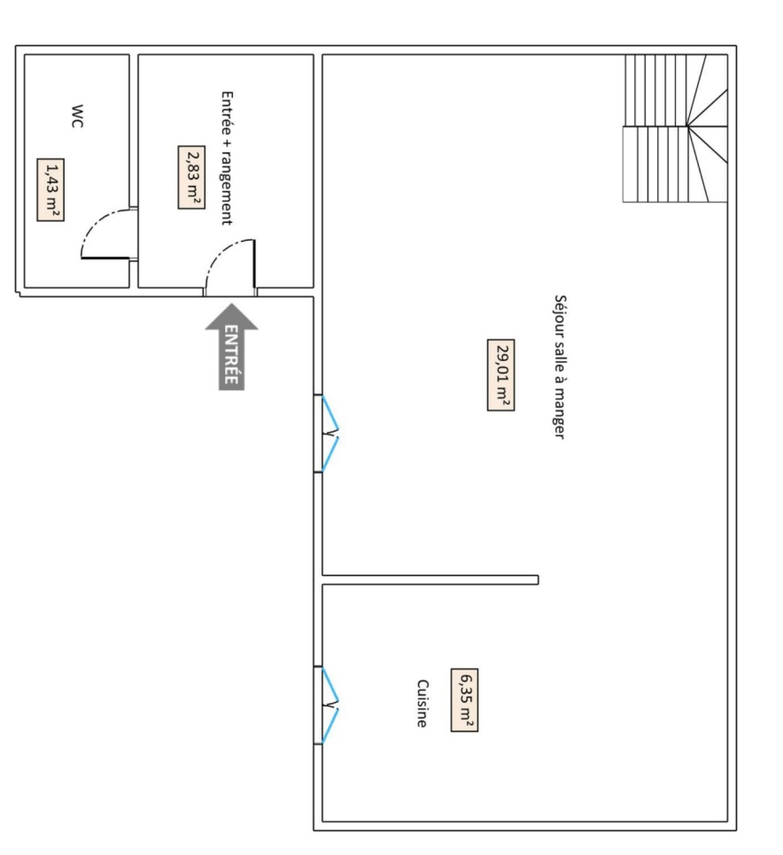
Rez-de-chaussée

  • entrée 2.83 m²
  • WC 1.43 m²
  • salon/sejour 29.01 m²
  • cuisine 6.35 m²

Etage 1

  • 1 er etg: palier placard 5.95 m²
  • salle de bain 5.19 m²
  • chambre 8.65 m²
  • chambre 14.2 m²

Etage 2

  • chambre 8.62 m²
  • 2 eme etg palier 1.45 m²
  • salle d'eau 1.27 m²
  • bureau 7.19 m²

Financier

Informations financières
Prix de vente 339 000 € Les honoraires d'agence seront intégralement à la charge du vendeur
Charges 25 €
Taxe foncière annuelle 1 734 €

Autour du bien

Découvrez le quartier

Simulation

Calcul des mensualités
* Champs obligatoires
Agence VOVARD IMMOBILIER Agence