Page suivante
Page précédente
Saint-Brice-sous-Forêt (95350)

Maison 8 pièce(s) 5 chambre(s) 234 m²

1
2
488 m²
560 000 €
Réf 560BBRS

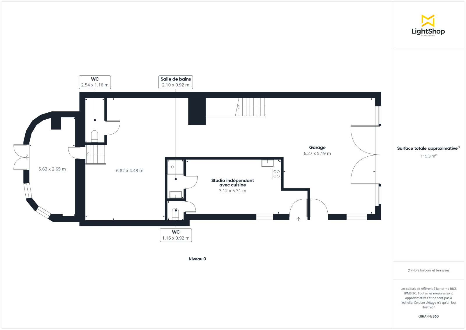
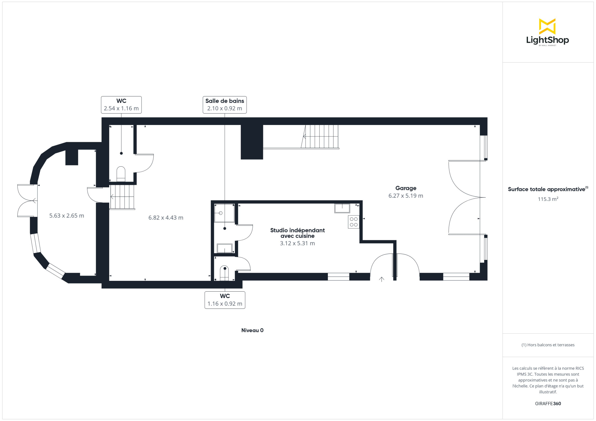
Vovard immobilier ** 0139860670 ** vous propose une maison au cachet authentique, à la rénovation de qualité et finitions soignées pour garder le charme de l'ancien, d'une surface hab. de 231 m2 + studio indépendant 21,5 m2 + garage 70 m2 - le tout sur une parcelle de 488 m2 repartie avec une cour à l'avant de la maison pouvant accueillir minimum 3 véhicules et un jardin profond à l arrière de la maison exposé SUD

la maison se compose comme suit :

accès par la cour : 1 studio indépendant avec salle de douche et wc (21,5 m2) et 1 grand garage de 70 m2 avec grande hauteur sous plafond, idéal activité professionnelle du bâtiment ou autre, accessible par la rue

Rdc surélevé : belle entrée desservant un sejour avec cheminée ancienne de 37 m2 + salle à manger de 22 m2 , cuisine équipée 15 m2 donnant accès à une veranda de 29 m2 - buanderie et wc -

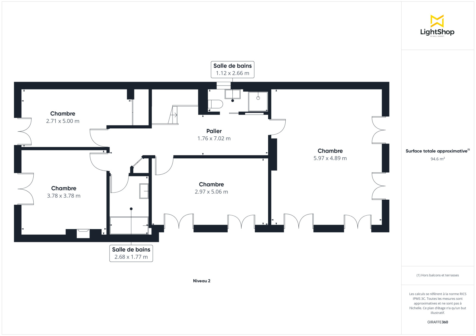
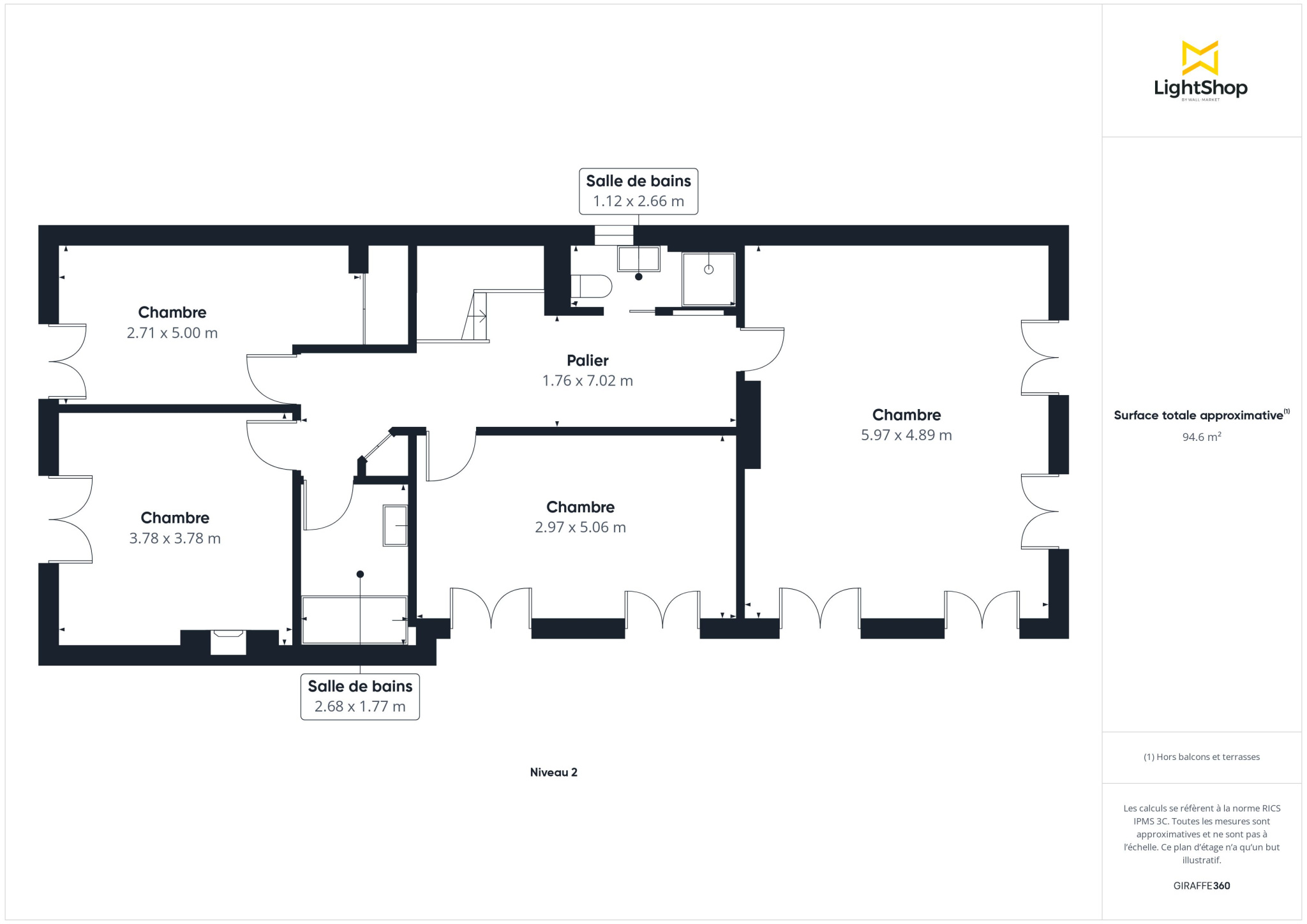
au 1er étage : grand palier avec rangements, 4 chambres dont une avec dressing (13, 14, 15 et 29 m2), salle de bains, salle d'eau, wc

Chauffage Gaz - fenêtres double vitrage - garage pour vehicule haut ( entrée de la porte 2,9*2,9m ) et aisément 3 places extérieures dans la cour - DPE D - taxe foncière 3727 € -

Située proche Centre Ville à 7 mn à pieds de la Gare ligne H et 5 mn des écoles primaire et maternelle / 10 mn collège

Bilan énergétique

Diagnostics énergetiques
A propos de ce bien Caractéristiques de ce bien
  • Surface 234 m²
  • carrez 234 m²
  • terrain 488 m²
  • séjour 37 m²
  • 5 chambre(s)
  • 1 salle(s) de bain
  • 2 salle(s) d'eau
  • construit en 1900
  • cuisine séparée (équipée)
  • Chauffage individuel : radiateur (gaz)
  • 1 garage(s)
  • exposition Sud
  • 2 niveau(x)
  • interphone
  • quartier centre ville

Composition

Composition de ce bien

Rez-de-chaussée

  • Studio piece vie avec cuisine 18.6 m²
  • WC 1 m²
  • salle d'eau 1.9 m²
  • Garage avec wc

Etage 1

  • entrée 9.5 m²
  • salon/sejour 37.5 m²
  • SALLE A MANGER 21.8 m²
  • chambre 15.5 m²
  • véranda 29 m²
  • degagement 0.9 m²
  • WC 1.5 m²
  • buanderie 5.6 m²

Etage 2

  • Palier 7.5 m²
  • degagement 5 m²
  • chambre 13.5 m²
  • chambre 14.4 m²
  • chambre 15.2 m²
  • chambre 29 m²
  • salle de bain 4.7 m²
  • salle d'eau 2.8 m²

Info copro

Copropriété
  • Copropriété Oui
  • Nombre de lots 225

Financier

Informations financières
Prix de vente honoraires TTC inclus 560 000 €
Taxe foncière annuelle 3 727 €

Autour du bien

Découvrez le quartier

Simulation

Calcul des mensualités
* Champs obligatoires
Agence VOVARD IMMOBILIER Agence