Page suivante
Page précédente
Saint-Brice-sous-Forêt (95350)

Maison 5 pièce(s) 3 chambre(s) 91 m²

1
287 m²
2
379 000 €
Réf 379prz

VOVARD IMMOBILIER tel : ** 01 39 86 06 70 ** vous propose - A vendre - Pavillon type F5- 3 chbs ( combles aménageables possible ) : Il comprend une entrée donnant sur un vaste séjour de 35 m² agrémenté de deux portes fenêtres donnant accès, à la terrasse et au jardin exposée sud-est, une cuisine équipée récente, WC , placard proche de l'entrée, au 1 étage: 3 belles chambres comprise entre 10 et 12 m2 non mansardé , vaste salle de bain avec fenêtre, WC, séparé

le tout édifié sur un terrain de 287 m2 - Situé à 7 minutes à pied de la gare SNCF, ligne H conduisant à Paris (Gare du Nord) en 16 min ET à 3 min des Écoles Primaire J de la Fontaine et maternelle J CHARON fenêtres en PVC dble vitrage , Surface hab. : 91 M2 - Parking - Séjour: 35 m2 m² - Chauffage Electrique - Tx foncière: 1220 €- LES PLUS : les propriétaires dispose d'une autorisation de la commune pour l'aménagement des combles en quatrième chambre, ( prix affiché honoraires inclus charges vendeurs )

Bilan énergétique

Diagnostics énergetiques
A propos de ce bien Caractéristiques de ce bien
  • Surface 91 m²
  • carrez 91 m²
  • terrain 287 m²
  • séjour 35 m²
  • 3 chambre(s)
  • 1 salle(s) de bain
  • construit en 1985
  • cuisine séparée (semi-équipée)
  • Chauffage individuel : radiateur (electrique)
  • 2 parking(s)
  • exposition Est
  • 1 côté(s) mitoyen(s)
  • 1 niveau(x)
  • terrasse
  • quartier centre ville

Composition

Composition de ce bien

Rez-de-chaussée

  • salon/sejour 35 m2 m²
  • cuisine 10.5 m²
  • Placard 2 m²
  • WC 2 m²

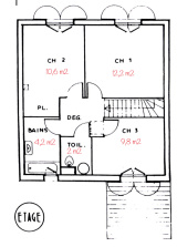
Etage 1

  • 1 er etg palier 2.1 m²
  • chambre 12.2 m²
  • chambre 10.6 m²
  • chambre 9.8 m²
  • salle de bain 4.2 m²
  • WC 2 m²

Financier

Informations financières
Prix de vente 379 000 € Les honoraires d'agence seront intégralement à la charge du vendeur
Charges 30 €
Taxe foncière annuelle 1 220 €

Autour du bien

Découvrez le quartier

Simulation

Calcul des mensualités
* Champs obligatoires
Agence VOVARD IMMOBILIER Agence