Page suivante
Page précédente
Groslay (95410)

Appartement 4 pièce(s) 2 chambre(s) 68 m²

1
1
1
199 000 €
Réf 199HRL/gros1G

EXCLUSIVITE VOVARD IMMOBILIER tel : ** 01 39 86 06 70 ** vous propose -

A vendre - Appartement à la décoration soignée de type F4 - 2chbs : Il comprend une vaste entrée, un double séjour de 25 m², une cuisine équipée donnant accès à un cellier/buanderie permettant d'y entreposer entre autre la machine à laver, salle de douche avec WC, 2 belles chambres, placard.

le tout exposition E/o - Situé à 6 minutes à pied de la gare SNCF, ligne H conduisant à Paris (Gare du Nord) en 16 min ET à 2 min des Écoles Primaire et maternelle LES GLAISIÈRES Surface hab. : 68 M2 + Parking - Séjour: 25 m² - ETAGE: 1/3 (sans ascenseur) CHARGES MENS: 150 Euro (entretien résidence, gardien, eau froide) - Chauffage électrique - Tx foncière: 1259 €

LES PLUS : Environnement verdoyant, fenêtres en PVC, stationnements privatifs et sécurisés Expo sans vis à vis, et aucun travaux à prévoir

Bilan énergétique

Diagnostics énergetiques
A propos de ce bien Caractéristiques de ce bien
  • Surface 68 m²
  • carrez 68 m²
  • séjour 25 m²
  • 2 chambre(s)
  • 1 salle(s) de bain
  • 1 salle(s) d'eau
  • construit en 1967
  • cuisine séparée (équipée)
  • Chauffage individuel : convecteur (electrique)
  • 1 parking(s)
  • exposition Est
  • 1 côté(s) mitoyen(s)
  • 1er étage
  • 3 étage(s)
  • vue PARC
  • cave
  • interphone

Composition

Composition de ce bien

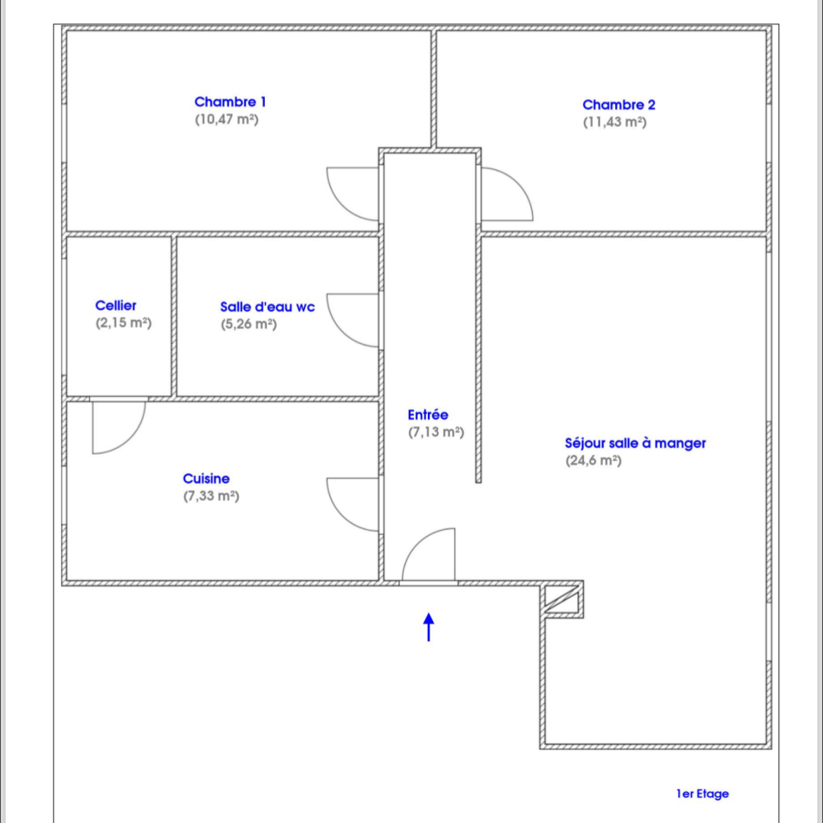
Rez-de-chaussée

  • entrée 7.13 m²
  • cuisine 7.33 m²
  • salon/sejour 24.60 m²
  • cellier 2.15 m²
  • salle de bain 5.26 m²
  • chambre 10.47 m²
  • chambre 11.43 m²

Info copro

Copropriété
  • Copropriété Oui
  • Lot n° 2
  • Nombre de lots 183
  • Quote part annuelle des charges 1 800 €

Financier

Informations financières
Prix de vente honoraires TTC inclus 199 000 €
Charges 150 €
Taxe foncière annuelle 1 259 €

Autour du bien

Découvrez le quartier

Simulation

Calcul des mensualités
* Champs obligatoires
Agence VOVARD IMMOBILIER Agence