Page suivante
Page précédente
Montlignon (95680)

Maison 6 pièce(s) 4 chambre(s) 161 m²

2
1100 m²
1
495 000 €
Réf 495MLTGN

VOVARD IMMOBILIER tel : 01 39 86 06 70 vous propose – A vendre – Maison individuelle F6 – 4 chambres – Montlignon (95)

Située à Montlignon, cette maison familiale de 161,59 m² habitables (201,58 m² au sol) est édifiée sur un terrain paysager de plus de 1 100 m², sans vis-à-vis, avec l’essentiel du jardin orienté sur l’arrière.

Rez-de-chaussée : entrée, cuisine, salle à manger, vaste salon, une chambre, salle de bains, toilettes et cellier, Étage : une belle mezzanine offrant un espace de vie supplémentaire et desservant une grande chambre, Surplomb du salon : accessible par un autre escalier, deux chambres supplémentaires complètent l’espace nuit.

Annexes et stationnements : Grand garage double de 30 m² - Possibilité de stationner 2 véhicules supplémentaires devant la maison. - Jardin paysager, sans vis-à-vis, avec espace familial et convivial.

Surface habitable : 161,59 m² (Carrez) - Surface au sol : 201,58 m² - Terrain : env. 1 100 m²

Taxe fonciere 2173€ / AN

Situation : Cadre résidentiel calme et recherché de Montlignon, proche des écoles

Bilan énergétique

Diagnostics énergetiques
A propos de ce bien Caractéristiques de ce bien
  • Surface 161 m²
  • carrez 161,59 m²
  • terrain 1 100 m²
  • séjour 29 m²
  • 4 chambre(s)
  • 2 salle(s) d'eau
  • construit en 1972
  • cuisine séparée (semi-équipée)
  • Chauffage individuel : radiateur (gaz)
  • 1 garage(s)
  • exposition Sud-Ouest
  • 1 côté(s) mitoyen(s)
  • 2 niveau(x)
  • vue SANS VIS A VIS
  • terrasse

Composition

Composition de ce bien

Rez-de-chaussée

  • cuisine 17.81 m²
  • degagement 3.03 m²
  • salon/sejour 29.17 m²
  • salle d'eau 9.97 m²
  • chambre 19.82 m²
  • WC 1.42 m²
  • SALLE A MANGER 35.86 m²

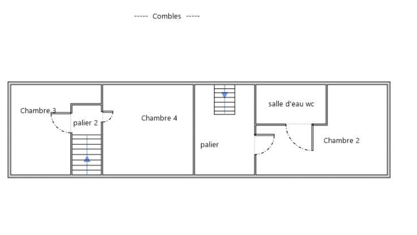
Etage 1

  • 1 er etg palier 2 2.17 m²
  • chambre 7.90 m²
  • chambre 9.41 m²
  • 1 er etg 7.85 m²
  • chambre 12.54 m²
  • salle d'eau 4.64 m²

Financier

Informations financières
Prix de vente 495 000 € Les honoraires d'agence seront intégralement à la charge du vendeur
Charges 146 €
Taxe foncière annuelle 2 173 €

Autour du bien

Découvrez le quartier

Simulation

Calcul des mensualités
* Champs obligatoires
Agence VOVARD IMMOBILIER Agence