Page suivante
Page précédente
Deuil-la-Barre (95170)

Immeuble 250 m² 3 etage(s)

3
630 000 €
Réf 630CRT IMMEUBLE

VOVARD IMMOBILIER tel : 01 39 86 06 70 vous propose - A vendre - Immeuble de rapport comprenant un local commercial 43,06 m², un appartement duplex 71,43 m² et un grand local commercial de 136,72 m², idéalement situés rue de l’Église à Deuil-la-Barre, à proximité immédiate du centre, des commerces, des écoles et à 10 minutes à pied de la gare SNCF (ligne H vers Paris Gare du Nord).

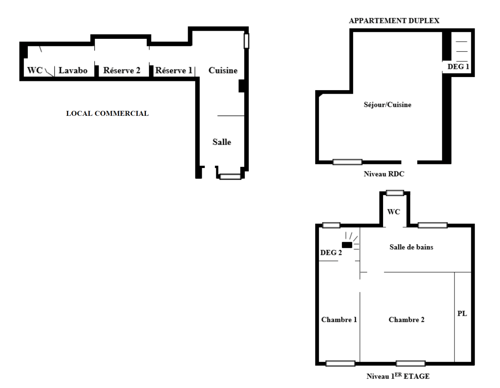
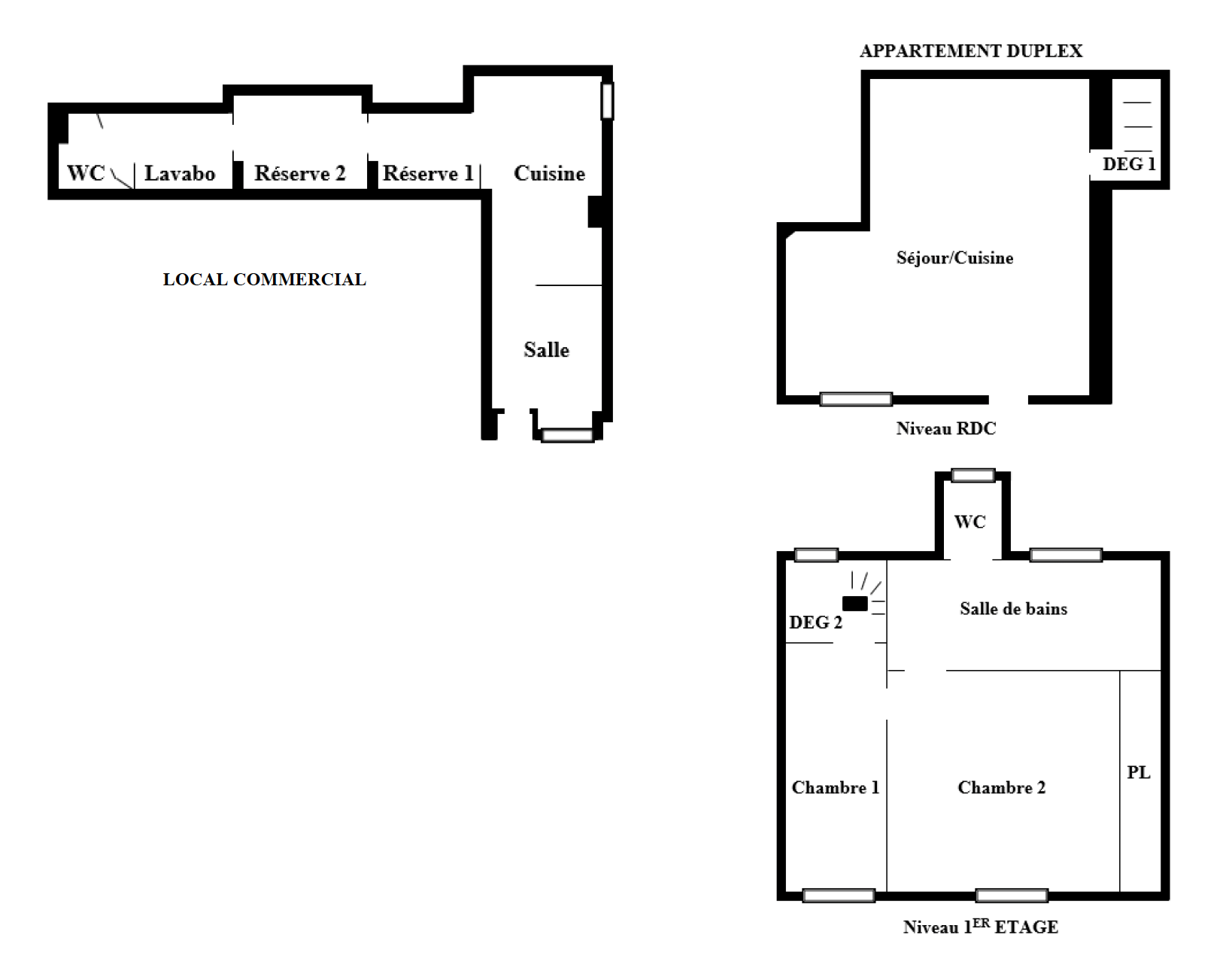
DESCRIPTION DES LIEUX

- Local commercial n°1 (43,06 m²) : salle 16,33 m², cuisine 13,39 m², réserves, lavabo et WC. local loué 1229 €/mois à la mairie de Deuil la Barre

- Appartement duplex (71,43 m²) : séjour/cuisine 28,53 m², dégagements, chambre 1 de 11,26 m², chambre 2 de 15,66 m² avec placard de 3,40 m², salle de bains 8,67 m², WC. - Appartement loué 969 €/mois depuis le 30/09/2011

- Grand local commercial n°2 (136,72 m²) : plusieurs réserves (28,11 m², 9,16 m², 14,29 m², 17,32 m²), deux cuisines (8,64 m² et 5,16 m²), deux arrière-cuisines (22,32 m² et 9,16 m²), deux bureaux (7,54 m² et 10,22 m²) et salle d’eau. Cave de 21,13 m² en complément. - Local loué 2190 €/mois depuis le 08/03/2023

, soit un revenu brut total mensuel de 4388 €. Charges mensuelles : eau (Veolia) 135 €, taxe foncière : 388 € par mois. Revenu net mensuel : 3865 €.

Immeuble vendu entièrement occupé, idéal pour investisseur recherchant un actif sécurisé avec un rendement élevé. Diagnostics disponibles dans le dossier,

DOSSIER SUR DEMANDE DETAILLE !

Bilan énergétique

Diagnostics énergetiques
A propos de ce bien Caractéristiques de ce bien
  • Surface 250 m²
  • carrez 250 m²
  • construit en 1900
  • Chauffage individuel : radiateur (electrique)
  • 2 niveau(x)
  • 3 étage(s)
  • cave

Info copro

Copropriété
  • Copropriété Oui

Financier

Informations financières
Prix de vente 630 000 € Les honoraires d'agence seront intégralement à la charge du vendeur
Taxe foncière annuelle 4 470 €

Autour du bien

Découvrez le quartier

Simulation

Calcul des mensualités
* Champs obligatoires
Agence VOVARD IMMOBILIER Agence