Page suivante
Page précédente
Saint-Brice-sous-Forêt (95350)

Maison 8 pièce(s) 6 chambre(s) 172 m²

1
2
442 m²
699 000 €
Réf 699BXRXM

VOVARD IMMOBILIER tel : 01 39 86 06 70 vous propose - A vendre -Maison Kauffmann agrandie – 6 chbs - À neuf minutes à pied de la gare SNCF (ligne H), cette maison Kauffmann bénéficie d’une extension réalisée par architecte, lui offrant de beaux volumes et une configuration rare dans le quartier.

Au rez-de-chaussée, l’entrée dessert un séjour de 52 m² et un salon ouvert la terrasse en bois exotique, ainsi qu’une cuisine familiale de 20 m². Une chambre de plain-pied complète ce niveau, attenante à une lingerie pouvant devenir salle de bains , et toilettes situées juste à côté.

À l’étage, la suite parentale de 27 m² comprend sa propre salle de bains avec baignoire, un dressing et un WC indépendant. Deux autres chambres (11,55 m² et 14,21 m²) se partagent une salle d’eau parfaitement adaptées pour les enfants, ainsi qu’un WC séparé.

Les combles ont été aménagés en deux chambres supplémentaires, accompagnées d’une salle d’eau et de toilettes indépendantes.

Le terrain accueille terrasses et jardin, avec une bonne exposition et une circulation agréable autour de la maison.

Situation pratique : écoles, commerces et gare accessibles à pied 

Surface habitable : 172,93 m²   - Séjour : 52 m² - Cuisine : 20 m² - Taxe Fonciere : 

Bilan énergétique

Diagnostics énergetiques
A propos de ce bien Caractéristiques de ce bien
  • Surface 172 m²
  • carrez 173 m²
  • terrain 442 m²
  • séjour 52 m²
  • 6 chambre(s)
  • 1 salle(s) de bain
  • 2 salle(s) d'eau
  • construit en 1994
  • cuisine américaine (équipée)
  • 2 parking(s)
  • exposition Sud-Est
  • 3 niveau(x)
  • vue JARDIN
  • terrasse
  • interphone

Composition

Composition de ce bien

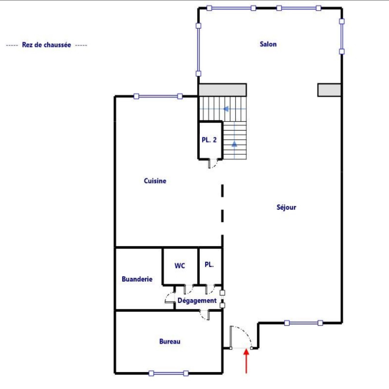
Rez-de-chaussée

  • salon/sejour 52.47 m²
  • degagement 2.13 m²
  • chambre 14.62 m²
  • buanderie 6.24 m²
  • WC 1.23 m²
  • Placard 0.75 m²
  • cuisine 19.81 m²

Etage 1

  • 1 er etg palier 6.07 m²
  • WC 1.09 m²
  • salle d'eau 3.21 m²
  • chambre 11.55 m²
  • chambre 14.21 m²
  • chambre 14.94 m²
  • dressing 1.88 m²
  • salle de bain 8.44 m²
  • WC 0.97 m²
  • WC 1.09 m²

Etage 2

  • 2 eme etg palier 1.67 m²
  • salle d'eau 1.55 m²
  • chambre 4.62 m²
  • chambre 4.92 m²

Financier

Informations financières
Prix de vente 699 000 € Les honoraires d'agence seront intégralement à la charge du vendeur

Autour du bien

Découvrez le quartier

Simulation

Calcul des mensualités
* Champs obligatoires
Agence VOVARD IMMOBILIER Agence