Saint-Brice-sous-Forêt (95350)

Maison 6 pièce(s) 4 chambre(s) 119 m²

1
1
112 m²
289 000 €
Réf 289RYR/ada

VOVARD IMMOBILIER tel : ** 01 39 86 06 70 ** vous propose - A vendre - Maison qui offre un très beau potentiel pour une grande famille, de type F6- 4 chbs proche du parc des vergers

Il Comprend, un vaste séjour de 29 m² avec cheminée, très belle hauteur sous plafond, en + une véranda de 15 m² qui permet d'agrandir le séjour. Une Cuisine, équipée, placard, WC séparé

- 1 er étage : palier avec placards, 3 chambre dont une avec placard, salle de bain, WC.

- au deuxième étage : une suite parentale avec dressing & salle d'eau et une buanderie

le tout édifié sur un terrain de 112 m2 exposé face au parc des vergers - Situé à 14 minutes à pied de la gare SNCF, ligne H conduisant à Paris (Gare du Nord) en 16min ET à 3 min des Écoles Primaire et maternelle Surface hab. : 104 m2 + 14,55 m2 de veranda + Parking et garage - Séjour: 29 m2 - CHARGES MENS: 20 Euro Pour l'entretien du lotissement, taxe fonciere: 2072€ / ans -

LES PLUS : fenêtres en PVC / Volets PVC récents - Garage + 1 place de stationnement devant -  Exposé sur le parc des vergers pas de  vis à vis - potentiel pour une grande famille - 

(prix affiché honoraires agence inclus à la charge vendeurs) 

Bilan énergétique

Diagnostics énergetiques
A propos de ce bien Caractéristiques de ce bien
  • Surface 119 m²
  • carrez 104 m²
  • terrain 112 m²
  • séjour 29 m²
  • 4 chambre(s)
  • 1 salle(s) de bain
  • 1 salle(s) d'eau
  • construit en 1981
  • cuisine séparée (semi-équipée)
  • Chauffage individuel : radiateur (electrique)
  • 1 garage(s)
  • 1 parking(s)
  • exposition Est
  • 1 côté(s) mitoyen(s)
  • 2 niveau(x)
  • vue Parc
  • cave
  • terrasse
  • quartier les vergers proche parc

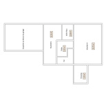
Composition

Composition de ce bien

Rez-de-chaussée

  • entrée 10.75 m²
  • salon/sejour 18 m²
  • véranda 14.55 m²
  • WC 1.44 m²
  • Placard 0.92 m²
  • cuisine 8.92 m²

Etage 1

  • Palier 8 m²
  • chambre 9.86 m²
  • WC 1.08 m²
  • salle de bain 3.83 m²
  • chambre 9.69 m²
  • chambre 11.9 m²

Etage 2

  • Palier 2.53 m²
  • buanderie 0.72 m²
  • chambre 13 m²
  • salle d'eau 2.5 m²

Financier

Informations financières
Prix de vente 289 000 € Les honoraires d'agence seront intégralement à la charge du vendeur
Charges 40 €
Taxe foncière annuelle 2 072 €

Autour du bien

Découvrez le quartier

Simulation

Calcul des mensualités
* Champs obligatoires
Agence VOVARD IMMOBILIER Agence