Page suivante
Page précédente
Saint-Brice-sous-Forêt (95350)

Maison 6 pièce(s) 4 chambre(s) 148.7 m²

1
1
350 m²
545 000 €
Réf 545SRF

À Vendre : Maison de Charme de 148 m² dans le Quartier Prisé du Vieux Saint Brice

Découvrez cette magnifique maison de quatre chambres, idéalement située dans le quartier paisible et recherché du Vieux Saint Brice, clos du château. - Surface Habitable : 148 m²- Chambres : 4 Entrée : Avec un grand placard-dressing, idéal pour ranger vos affaires dès votre arrivée à la maison. Séjour : Très lumineux, de 41 m, grâce à de vastes baies vitrées offrant une vue dégagée sur le jardin, exposition Ouest. Cuisine : Récemment équipée par un cuisiniste, de 17,6 m, avec un plan en pierre naturelle et un bar pour déjeuner. Lingerie : Avec salle d'eau, idéale pour les machines à laver et sèche-linge, surface de 9m2, comprenant une douche et des WC. une Chaufferie

1er Étage : 4 chambres, de 12,6 à 16 m2, dont une suite parentale avec salle de bain et double vasque. WC séparés. Le tout édifié sur un terrain de 350 m, exposition sud-ouest. La maison dispose d'un portail avec un espace de stationnement pour deux véhicules, ainsi qu'un vaste cabanon de 8 m au fond du jardin. Situation : À 20 minutes à pied de la gare SNCF, ligne H, conduisant à Paris (Gare du Nord) en 16 min. À 8 minutes des écoles primaire et maternelle. Rubrique Financière : Taxe Foncière : 3143 € Profitez du calme et de la sérénité de ce quartier résidentiel tout en étant proche de toutes les commodités.

Bilan énergétique

Diagnostics énergetiques
A propos de ce bien Caractéristiques de ce bien
  • Surface 148,70 m²
  • carrez 148,70 m²
  • terrain 350 m²
  • séjour 41 m²
  • 4 chambre(s)
  • 1 salle(s) de bain
  • 1 salle(s) d'eau
  • construit en 2009
  • cuisine américaine (semi-équipée)
  • Chauffage central : chaudière (gaz)
  • exposition Ouest
  • 2 niveau(x)
  • vue JARDIN
  • terrasse
  • quartier le clos du chateau

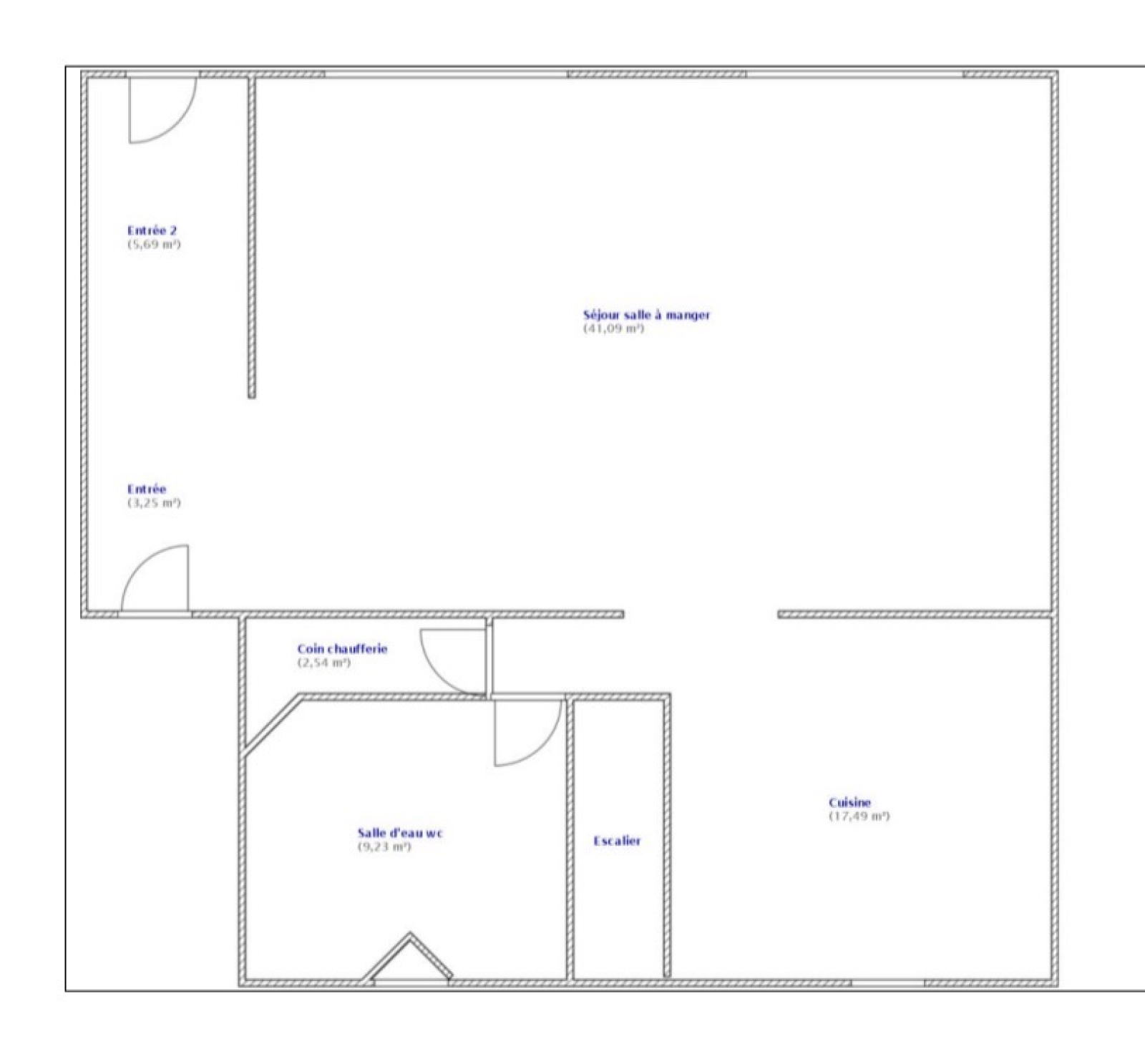
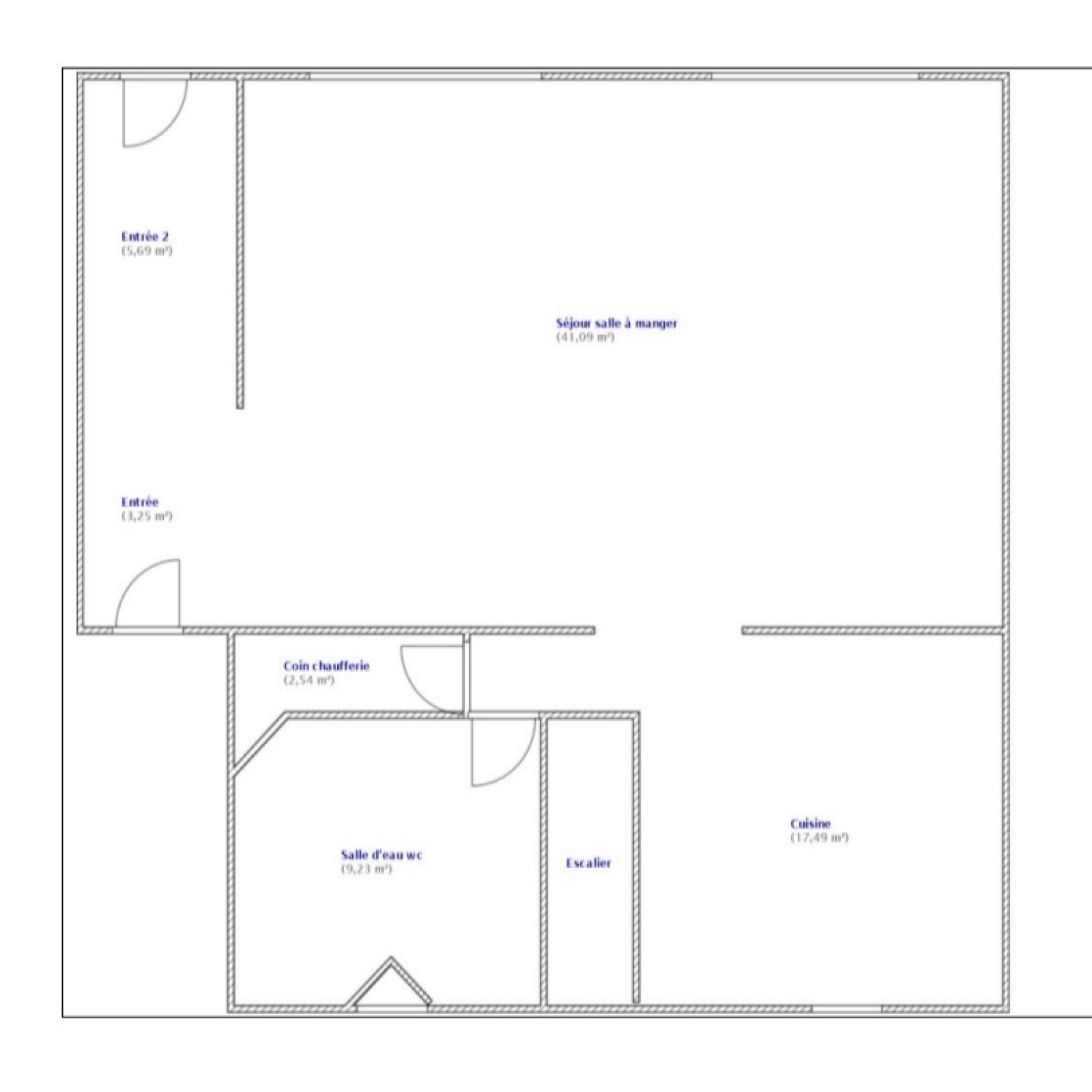
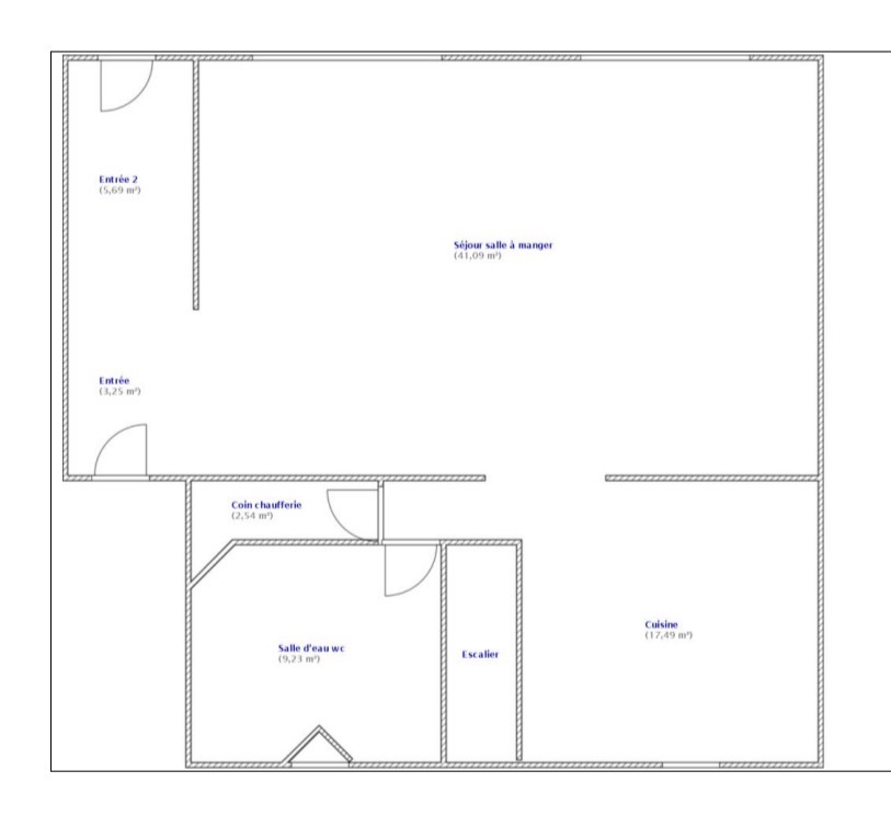
Composition

Composition de ce bien

Rez-de-chaussée

  • entrée 2.8 m²
  • Entrée jardin placard 5.8 m²
  • salon/sejour 41 m²
  • cuisine 17.6 m²
  • lingerie 8.9 m²
  • Chaufferie 2.8 m²

Etage 1

  • 1 er etg palier 3.6 m²
  • chambre 15 m²
  • chambre 12.63 m²
  • chambre 16.62 m²
  • salle de bain 7.34 m²
  • chambre 11.84 m²
  • WC 1.69 m²

Financier

Informations financières
Prix de vente 545 000 € Les honoraires d'agence seront intégralement à la charge du vendeur
Taxe foncière annuelle 3 143 €

Autour du bien

Découvrez le quartier

Simulation

Calcul des mensualités
* Champs obligatoires
Agence VOVARD IMMOBILIER Agence