Page suivante
Page précédente
Saint-Brice-sous-Forêt (95350)

Maison 5 pièce(s) 3 chambre(s) 87.96 m²

1
255 m²
1
1 950 € CC*
Réf 1950PTRCH

Agence VOVARD IMMOBILIER tel ** 07 62 70 72 12 ** vous propose A LOUER ST BRICE SOUS FORET - ravissante maison Kaufman Édifiée sur 255 m² de terrain,  de type  F4 de 88 m2 hab comprenant , une entrée donnant sur un séjour double, une cuisine américaine semi-équipée, wc, au 1 er etg: 3 belles chambres de 12,8 - 13 et 10 m² , sb  , wc ,  2 places de stationement  le tout  à Situé à 8 minutes à pied de la gare SNCF, ligne H du Transilien conduisant à Paris (Gare du Nord) en 16 min ET à 9 min des Écoles JEAN DE LA FONTAINE /.  Surface hab. : 88 M2  + garage - ETAGE: 1 -  LOYER 1950 €  - HONORAIRES D'AGENCE : 990€

Bilan énergétique

Diagnostics énergetiques
A propos de ce bien Caractéristiques de ce bien
  • Surface 87,96 m²
  • carrez 87,96 m²
  • terrain 255 m²
  • séjour 42,25 m²
  • 3 chambre(s)
  • 1 salle(s) d'eau
  • construit en 1998
  • cuisine américaine (semi-équipée)
  • Chauffage individuel : radiateur (gaz)
  • 1 garage(s)
  • 1 parking(s)
  • exposition Est-Ouest
  • 1 côté(s) mitoyen(s)
  • terrasse

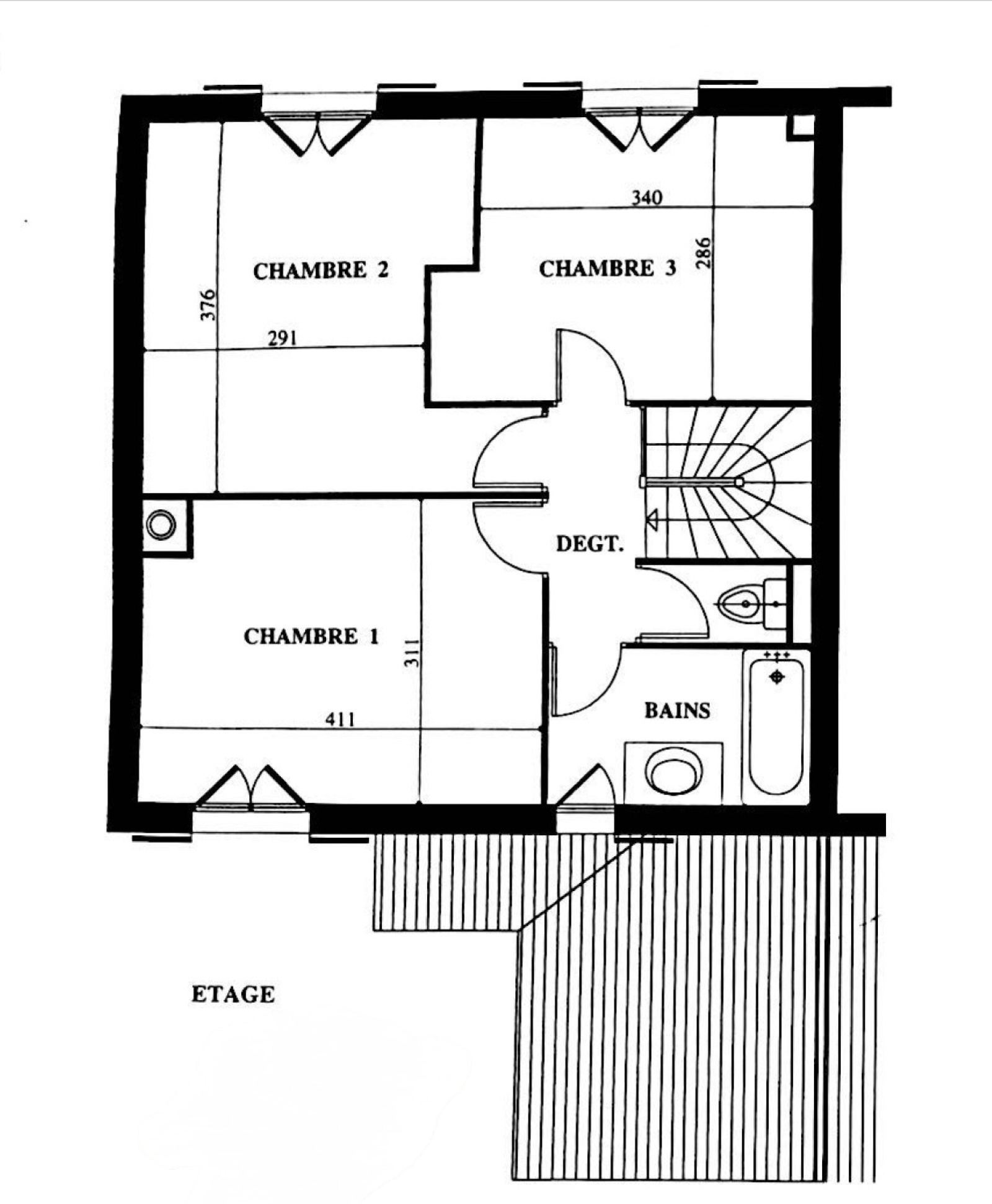
Composition

Composition de ce bien

Rez-de-chaussée

  • salon/sejour 42.25 m²
  • degagement placard 0.61 m²
  • WC 2.26 m²

Etage 1

  • palier 1 er etg 2.18 m²
  • WC 1 m²
  • salle d'eau 4.18 m²
  • chambre 12.41 m²
  • chambre 13.55 m²
  • chambre 9.52 m²

Financier

Informations financières
Loyer CC* / mois 1 950 €
Honoraires TTC charge locataire 990 €
Dont état des lieux 263,88 €
Dépôt de garantie TTC 1 950 €

Autour du bien

Découvrez le quartier
Agence VOVARD IMMOBILIER Agence

* CC : Charges comprises